Proyectos

Algunos de nuestros proyectos más relevantes de ingeniería a lo largo de nuestra historia

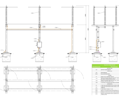
Ampliación Subestación eléctrica Irina Generación 220/30 kV ubicado en el término municipal de Medina del Campo (Valladolid)

Cliente

Promoción Privada

Año

2025

Ubicación

Medina del campo (Valladolid)

Sector

Transporte y distribución de energía

Servicio

Proyecto ejecutivo de ampliación de la subestación "Irina Generación" 220/30 kV con nueva posición de transformación correspondiente a la planta fotovoltaica PSF Medina de 22MWn de potencia la cual incluye toda la aparamenta y celdas de 30kV, el transformador 220/30 kV, aparamenta de 220 kV de la posición, incluyendo el seccionador de barras y equipos de control que componen dicha posición. Como subestación existente, para conseguir un mayor detalle, el replanteo y topografía se ha utilizado Dron y tecnología GIS.

© Gevs Ingeniería 2023 - Todos los derechos reservados - Desarrollado por VGS